MT 233-2011 1.5t礦車 立井多繩罐籠
- 發表時間:2022-08-29
- 來源:共立消防
- 人氣:
1 范圍
本標準規定了 1.5 t礦車立井多繩罐籠(以下簡稱罐籠)的術語和定義、產品分類、技術要求、試驗方法、檢驗規則、標志、包裝、運輸和貯存。
本標準適用于提升1.5 t標準礦車、材料、設備及人員的立井多繩鋼罐道罐籠。
2 規范性引用文件
下列文件中的條款通過本標準的引用而成為本標準的條款。凡是注日期的引用文件,其隨后所有的修改單(不包括勘誤的內容)或修訂版均不適用于本標準,然而,鼓勵根據本標準達成協議的各方研究 是否可使用這些文件的最新版本。凡是不注日期的引用文件,其最新版本(包括所有的修改單)適用于 本文件。
GB/T 27 六角頭鉸制孔用螺栓A和B級
GB/T 116 鉚釘技術條件
GB/T 699 優質碳素結構鋼
GB/T 700 碳素結構鋼(GB/T 700-2006,ISO 630: 1995,NEQ)
GB/T 985.1 氣焊、焊條電弧焊、氣體保護焊和高能束焊的推薦坡口(GB/T 985.1-2008, ISO 9692-1:2003,MOD)
GB/T 1184-1996 形狀和位置公差 未注公差值(eqvISO 2768-2:1989)
GB/T 1228 鋼結構用高強度大六角頭螺栓(GB/T 1228-2006,ISO 7412-1984,NEQ)
GB/T 1591低合金高強度結構鋼
GB/T 1804-2000 一般公差 未注公差的線性和角度尺寸的公差(eqv ISO 2768-1:1989)
GB/T 3632 鋼結構用扭剪型高強度螺栓連接副
GB/T 9286 色漆和清漆 漆膜的劃格試驗(GB/T 9286-1998,eqvISO 2409:1992)
GB/T 15663.5 煤礦科技術語 第5部分:提升運輸
GB 50017 鋼結構設計規范
JB/T 5000.3-2007 重型機械通用技術條件 第3部分:焊接件
JB/T 5000.10 重型機械通用技術條件 第10部分:裝配
JB/T 5000.12-2007 重型機械通用技術條件 第12部分:涂裝
MT/T 154.1 煤礦機電產品型號編制方法 第1部分:導則
MT 235 立井多繩罐籠平衡錘
MT/T 236 矩形鋼罐道滾輪罐耳
MT 237.3 多繩提升容器 B型鋼絲繩懸掛裝置 圓尾繩懸掛裝置
MT 237.4 多繩提升容器B型鋼絲繩懸掛裝置扁尾繩懸掛裝置
MT 684 礦用提升容器重要承載件無損探傷方法與驗收規范
《煤礦安全規程》(國家安全生產監督管理總局、國家煤礦安全監察局)
3 術語和定義
GB/T 15663.5 確立的以及下列術語和定義適用于本標準。
3.1
罐體 cage body
不含首繩懸掛裝置、尾繩懸掛裝置、滾輪罐耳、罐內阻車器、罐籠門和安全篷的罐籠本體框架。
3.2
四角罐耳 four corner rouer
罐籠在進出車水平,為穩罐需要在罐籠四角設置的導向構件。
3.3
滑動罐耳slide rouer
當滾輪罐身損壞和更換時起安全保護作用,而正常運行時不接觸罐道剛性導向構件。
4 產品分類
4.1 型式
4.1.1 首繩懸掛裝置與罐籠用銷軸直接連接,連接孔中心距按多繩摩擦式提升機鋼絲繩間距確定;尾 繩懸掛裝置采用MT 237.3、MT 237.4規定的圓尾繩和扁尾繩兩種。
4.1.2 在罐籠的上、中、下盤體兩端設置蓋板門(下盤蓋板門用螺栓鎖緊),以便下放長材料或作緊急安 全出口用。
4.1.3 罐籠兩端采用上、下開閉的簾式罐籠門或其他形式的罐籠門。
4.1.4 罐籠頂部設置可拆卸的安全篷。
4.1.5 罐體采用型鋼立柱。立柱與各盤體、盤體主要受力桿件之間采用GB/T 1228、GB/T 3632規定 的高強度螺栓或GB/T 27規定的較制孔用螺栓聯接。
4.1.6 罐籠在進出車水平采用搖臺承接方式。罐籠內軌道承接搖臺的導軌襯分1型(槽形)和n型(平 形)兩種,見圖1、圖2。

4.1.7 罐籠采用MT 236規定的滾輪罐耳沿矩形鋼罐道導向,滾輪罐耳和滑動罐耳均設置在罐籠的兩 端。
4.1.8 罐籠各盤體四角設置四角罐耳。罐籠在井口與井底進出車水平采用剛性四角罐道或其他穩罐 裝置穩罐。
4.1.9 井口與井底同側進出車的罐籠內軌面采用凸塊或凹槽定位,上部擋車器阻車。井口與井底異側 進出車的罐籠內軌面采用滑塊式阻車器定位,上部擋車器阻車。
4.1.10根據井筒深度、多繩摩擦式提升機防滑要求,在罐籠盤體內設可調配重塊。
4.2 分類
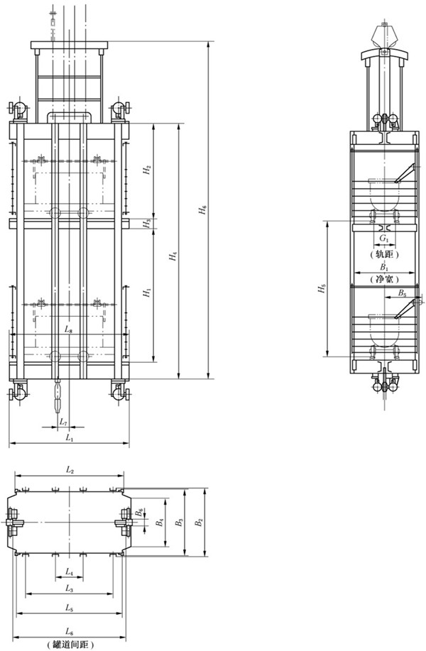
罐籠按礦車軌距、礦車數量、外形尺寸分為下列10個品種、14種型式:
a)600 mm軌距1.5 t礦車二層二車罐籠,窄型,凈寬1 200 mm(圖3);
b)600 mm軌距1.5 t礦車二層二車罐籠,寬型,凈寬1 700 mm(圖3);

圖3 600 mm軌距1.5 t礦車二層二車窄型、寬型罐籠
以上為標準部分內容,如需看標準全文,請到相關授權網站購買標準正版。
-
IG541混合氣體滅火系統
IG541混合氣體滅火系統:IG-541滅火系統采用的IG-541混合氣體滅火劑是由大氣層中的氮氣(N2)、氬氣(Ar)和二氧化碳(CO2)三種氣體分別以52%、40%、8%的比例混合而成的一種滅火劑 -
二氧化碳氣體滅火系統
二氧化碳氣體滅火系統:二氧化碳氣體滅火系統由瓶架、滅火劑瓶組、泄漏檢測裝置、容器閥、金屬軟管、單向閥(滅火劑管)、集流管、安全泄漏裝置、選擇閥、信號反饋裝置、滅火劑輸送管、噴嘴、驅動氣體瓶組、電磁驅動 -
七氟丙烷滅火系統
七氟丙烷(HFC—227ea)滅火系統是一種高效能的滅火設備,其滅火劑HFC—ea是一種無色、無味、低毒性、絕緣性好、無二次污染的氣體,對大氣臭氧層的耗損潛能值(ODP)為零,是鹵代烷1211、130 -
手提式干粉滅火器
手提式干粉滅火器適滅火時,可手提或肩扛滅火器快速奔赴火場,在距燃燒處5米左右,放下滅火器。如在室外,應選擇在上風方向噴射。使用的干粉滅火器若是外掛式儲壓式的,操作者應一手緊握噴槍、另一手提起儲氣瓶上的


