MT/T 327-2011 天輪
- 發表時間:2022-10-12
- 來源:共立消防
- 人氣:
1 范圍
本標準規定了天輪的分類、技術要求、試驗方法和檢驗規則及標志、包裝、運輸、貯存。
本標準適用于煤礦立井單繩提升、斜井及鑿井提升用的天輪。
2 規范性引用文件
下列文件中的條款通過本標準的引用而成為本標準的條款。凡是注日期的引用文件,其隨后所有的修改單(不包括勘誤的內容)或修訂版均不適用于本標準,然而,鼓勵根據本標準達成協議的各方研究是否可使用這些文件的最新版本。凡是不注日期的引用文件,其最新版本適用于本標準。
GB/T 116 鉚釘技術條件
GB/T 699-1999 優質碳素結構鋼
GB/T 711-2008 優質碳素結構鋼熱軋厚鋼板和鋼帶
GB/T 1184-1996 形狀和位置公差 未注公差值(ISO 2768-2:1989,EQV)
GB/T 1804-2000 一般公差 未注公差的線性和角度尺寸的公差(ISO 2768-1:1989,EQV)
GB/T 11345-1989 鋼焊縫手工超聲波探傷方法和探傷結果分級
GB/T 11352-1989 一般工程用鑄造碳鋼件(ISO 3755:1991,NEQ)
JB 1581-1996 汽輪機、汽輪發電機轉子和主軸鍛件 超聲波探傷方法
MT/T 154.1 煤礦機電產品型號編制方法 第1部分:導則
《煤礦安全規程》國家安全生產監督管理總局(2006年)。
3 產品分類
3.1 型式
3.1.1 天輪按提升方式和用途分為下列三種型式:
a) 立井天輪;
b)鑿井天輪;
c) 游動天輪。
注:鑿井天輪亦用于暗立井提升及斜井提升。
3.1.2 天輪輪體采用整體鑄鋼結構、焊接結構及模壓鋼板輪緣結構三種型式,鑄鋼結構輪體直徑小于等于3 000mm,模壓結構輪體直徑大于等于3 500mm。
3.1.3 軸承型式均采用滾動軸承。
3.2 基本參數與尺寸
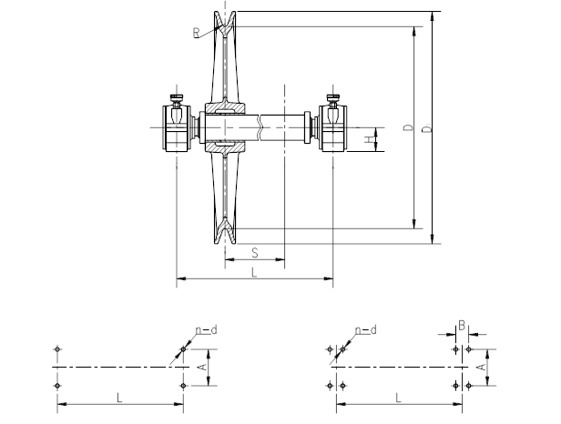
3.2.1 游動天輪的基本參數與尺寸應符合圖1和表1的規定。
3.2.2 立井天輪的基本參數與尺寸應符合圖2、圖3、圖4和表2的規定。
3.2.3 鑿井天輪的基本參數與尺寸應符合圖2、圖3和表3的規定。

圖1 游動天輪
表1 游動天輪基本參數與尺寸
序 號 | 型號 | 繩槽底 圓直徑 D | 繩槽 半徑 R | 最大游 動距離 S | 適用鋼絲繩直 徑 | 允許鋼絲 破斷拉力 總 和 | 主要尺寸 | 地腳螺 栓數量 n | 轉動 慣量 | 質量 | |||||
L | H | D1 | A | B | d | ||||||||||
mm | kN | mm | 個 | kg·m2 | kg | ||||||||||
1 | TDG 600/9/300 | 600 | 9 | 300 | 14~16 | 160 | 670 | 95 | 690 | 260 | — | 18 | 4 | 4 | 130 |
2 | TDG 800/11/700 | 800 | 11 | 700 | >16~20 | 252 | 1 100 | 95 | 920 | 260 | — | 18 | 4 | 13 | 220 |
3 | TDG 1 000/13.5/800 | 1 000 | 13.5 | 800 | >20~24.5 | 382 | 1 250 | 130 | 1 140 | 350 | — | 26 | 4 | 31 | 425 |
4 | TDG 1 400/16/740 | 1 400 | 16 | 740 | >24.5~30 | 597 | 1 300 | 140 | 1 580 | 340 | 60 | 22 | 8 | 105 | 675 |
5 | TDG 1 400/16/1 350 | 1 350 | 1 900 | 850 | |||||||||||

圖2 鑄鋼天輪
以上為標準部分內容,如需看標準全文,請到相關授權網站購買標準正版。
-
IG541混合氣體滅火系統
IG541混合氣體滅火系統:IG-541滅火系統采用的IG-541混合氣體滅火劑是由大氣層中的氮氣(N2)、氬氣(Ar)和二氧化碳(CO2)三種氣體分別以52%、40%、8%的比例混合而成的一種滅火劑 -
二氧化碳氣體滅火系統
二氧化碳氣體滅火系統:二氧化碳氣體滅火系統由瓶架、滅火劑瓶組、泄漏檢測裝置、容器閥、金屬軟管、單向閥(滅火劑管)、集流管、安全泄漏裝置、選擇閥、信號反饋裝置、滅火劑輸送管、噴嘴、驅動氣體瓶組、電磁驅動 -
七氟丙烷滅火系統
七氟丙烷(HFC—227ea)滅火系統是一種高效能的滅火設備,其滅火劑HFC—ea是一種無色、無味、低毒性、絕緣性好、無二次污染的氣體,對大氣臭氧層的耗損潛能值(ODP)為零,是鹵代烷1211、130 -
手提式干粉滅火器
手提式干粉滅火器適滅火時,可手提或肩扛滅火器快速奔赴火場,在距燃燒處5米左右,放下滅火器。如在室外,應選擇在上風方向噴射。使用的干粉滅火器若是外掛式儲壓式的,操作者應一手緊握噴槍、另一手提起儲氣瓶上的


