GB/T 23913.3-2009 復合巖棉板耐火艙室 第3部分:防火門
- 發表時間:2022-11-07
- 來源:共立消防
- 人氣:
1 范圍
GB/T 23913的本部分規定了復合巖棉板耐火艙室中防火門的分類和標記、要求、試驗方法、檢驗規則等。
本部分適用于船舶和海洋工程建筑物上具有耐火分隔要求的艙室和生活模塊中防火門的設計、制造和驗收。
2 規范性引用文件
下列文件中的條款通過GB/T 23913的本部分的引用而成為本部分的條款。凡是注日期的引用文件,其隨后所有的修改單(不包括勘誤的內容)或修訂版均不適用于本部分,然而,鼓勵根據本部分達成協議的各方研究是否可使用這些文件的最新版本。凡是不注日期的引用文件,其最新版本適用于本部分。
GB/T 700-2006 碳素結構鋼(ISO 630:1995,Structural steels-Plates,wide flats,bars,sections and profiles,NEQ)
GB/T 706-2008 熱軋型鋼
GB/T 708-2006 冷軋鋼板和鋼帶的尺寸、外形、重量及允許偏差(ISO 16162:2000,Continuouslycold-rolled steel sheet products-Dimensional and shape tolerances,NEQ)
GB/T 1720-1979 漆膜附著力測定法
GB/T 2518-2008 連續熱鍍鋅鋼板及鋼帶
GB/T 3003-2006 耐火材料 陶瓷纖維及制品
GB/T 3280-2007 不銹鋼冷軋鋼板和鋼帶
GB/T 4237-2007 不銹鋼熱軋鋼板和鋼帶
GB/T 11874 船用門和窗開啟方向和符號標志(GB/T 11874-1989,neq ISO/R 1226:1970)
CB/T 3830-1998 船用巖棉及其制品
中國船級社 海上移動平臺入級與建造規范 2005
國際海事組織(IMO)國際海上人命安全公約 2004綜合文本
國際海事組織(IMO)國際耐火試驗程序應用規則(FTP)附件1(FTPC) 第1部分/IMO.A799(19)經修正的船用結構材料不燃性試驗方法的建議案
國際海事組織(IMO)國際耐火試驗程序應用規則(FTP)附件1(FTPC) 第3部分/IMO.A754(18)關于“A”、“B”和“F”級分隔耐火試驗程序的建議案
國際海事組織(IMO)國際耐火試驗程序應用規則(FTP)附件1(FTPC)第5部分/IMO.A653(16)關于艙壁、天花板飾面材料表面燃燒性的耐火試驗程序的修正建議
UI SC126(針對SOLAS II-2章中5.3,6.2,6.3,貨船的防火材料性能要求的解釋)
UI SC127[針對SOLAS II-2章中6.2,對材料表面的油漆、清漆和其他飾面涂料的煙氣及毒性物質限制要求的解釋的第二修訂版(Rev.2)]
3 術語和定義
國際海事組織(IMO)《國際海上人命安全公約》2004綜合文本和中國船級社《海上移動平臺入級與建造規范》2005中確立的“A”、“B”和“H”級耐火分隔等級的術語和定義適用于GB/T 23913的本部分。
4 分類和標記
4.1 分類
4.1.1 防火門按結構分為單扇防火門和雙扇防火門。
4.1.2 防火門按防火級別分為A級、B級和H級防火門。
4.2 典型結構型式和主要參數
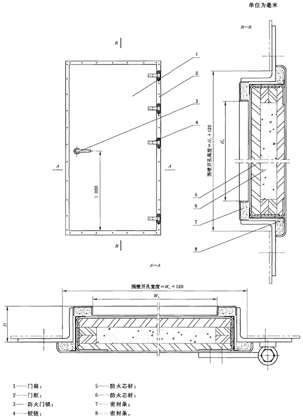
防火門的典型結構型式及主要參數見表1及圖1~圖31。
表1 防火門典型結構型式及主要參數 單位為毫米
名稱 | 代號 | 防火 級別 | 附件 | 通孔尺寸 | 門框 深度 D | 門扇 厚度 t | 門框 型式 | 安裝 要求 | |
高Hc | 寬Mc | ||||||||
單 扇 防 火 門 | H120 | H-120 | W | ≤2 200 | ≤1 300 | 65~440 | 50~80 | C1 | 安裝在鋼壁上 |
H60 | H-60 | ||||||||
A60 | A-60 | W、P、E、EV | 43~45 | A1、A2、A3、A4、A5、A6、Z | 安裝在鋼壁或 復合巖棉板與 鋼壁組合的襯 板上 | ||||
A30 | A-30 | ||||||||
A15 | A-15 | 38~40 | |||||||
A0 | 0-V V | ||||||||
B15 | B-15 | W、V、E、EV | ≤2100 | ≤1 000 | B1、B2、B3、B4、B5、B6、Z | ||||
BO | B-0 | ||||||||
IB15 | B-15 | S K | 安裝在復合巖 棉板上 | ||||||
IBO | B-0 | 50 | |||||||
FB15 | B-15 | - | |||||||
FBO | B-0 | ||||||||
雙 扇 防 火 門 | DA60 | 09-V | W、P、E、EV | ≤2100 | ≤2 100 | 65~440 | 43~45 | A1、A2、A3、A4、A5、A6、Z | 安裝在鋼壁或 復合巖棉板與 鋼壁組合的襯 板上 |
DA30 | A-30 | ||||||||
DA15 | A-15 | 38~40 | |||||||
DAO | A-0 | ||||||||
DB15 | B-15 | W、V、E、EV | B1、B2、B3、B4、B5、B6、Z | ||||||
DBO | B-0 | ||||||||
DIB15 | B-15 | W、V、E、EV | 50 | S、K | 安裝在復合巖 棉板上 | ||||
DIBO | B-0 | ||||||||
注1:表中符號說明: A、B、H-防火級別;V-通風柵;I-艙室內門; E-逃生口; D-雙扇防火門; EV-帶通風柵的逃生口;F-風道防火門;W-觀察窗; P-消防口。 注2:門框型式符號說明見4.3。 注3:表中附件均為可選件。 | |||||||||

圖1 H60、H120級防火門
以上為標準部分內容,如需看標準全文,請到相關授權網站購買標準正版。
-
IG541混合氣體滅火系統
IG541混合氣體滅火系統:IG-541滅火系統采用的IG-541混合氣體滅火劑是由大氣層中的氮氣(N2)、氬氣(Ar)和二氧化碳(CO2)三種氣體分別以52%、40%、8%的比例混合而成的一種滅火劑 -
二氧化碳氣體滅火系統
二氧化碳氣體滅火系統:二氧化碳氣體滅火系統由瓶架、滅火劑瓶組、泄漏檢測裝置、容器閥、金屬軟管、單向閥(滅火劑管)、集流管、安全泄漏裝置、選擇閥、信號反饋裝置、滅火劑輸送管、噴嘴、驅動氣體瓶組、電磁驅動 -
七氟丙烷滅火系統
七氟丙烷(HFC—227ea)滅火系統是一種高效能的滅火設備,其滅火劑HFC—ea是一種無色、無味、低毒性、絕緣性好、無二次污染的氣體,對大氣臭氧層的耗損潛能值(ODP)為零,是鹵代烷1211、130 -
手提式干粉滅火器
手提式干粉滅火器適滅火時,可手提或肩扛滅火器快速奔赴火場,在距燃燒處5米左右,放下滅火器。如在室外,應選擇在上風方向噴射。使用的干粉滅火器若是外掛式儲壓式的,操作者應一手緊握噴槍、另一手提起儲氣瓶上的


